Das Einfamilienhaus (Neckermann-Komforthaus) befindet sich in einer ruhigen und sehr gefragten Wohnlage im Berliner Ortsteil Rosenthal, Bezirk Pankow. Das Haus ist unterkellert und verfügt über eine großzügige Garage, die direkt vom Keller aus erreichbar ist. Im Keller befinden sich zwei weitere Räume, die sich sowohl als Lager als auch als Arbeitszimmer mit Fenster eignen.
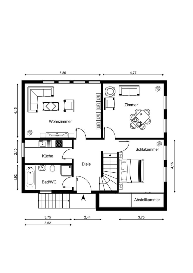
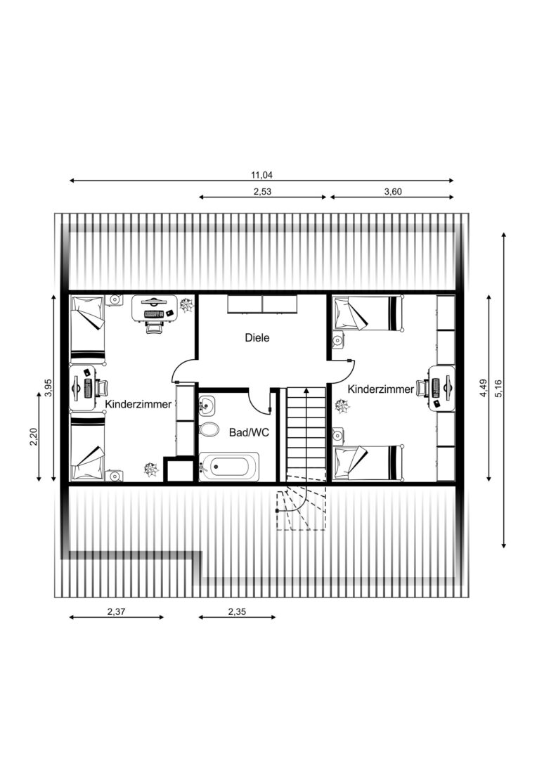
Im Erdgeschoss befinden sich zwei große Schlafzimmer, ein Wohnzimmer mit großer Fensterfront und Zugang zur großzügigen Terrasse, eine Küche sowie ein großes Badezimmer mit Wanne und Fenster. Das Obergeschoss ist über eine Holztreppe erreichbar. Dort befinden sich zwei weitere Zimmer und ein Duschbad mit Fenster. Die Dachschrägen beginnen ab einem Meter.
Der Grundriss bietet zahlreiche Gestaltungsoptionen. Hier können vier Schlafzimmer, ein großes Wohnzimmer mit offener oder geschlossener Küche sowie zwei Bäder realisiert werden – ideal für Familien, die großzügigen Raum zum Wohlfühlen suchen. Der große Garten bietet zusätzlichen Raum für individuelle Gestaltungsmöglichkeiten.
Die im Exposé gezeigten Visualisierungen dienen als Beispiele für die in diesem Haus realisierbaren Gestaltungsmöglichkeiten. Der vorhandene Grundriss lässt alle dargestellten Varianten zu und ermöglicht somit eine flexible Planung, um individuelle Wünsche zu realisieren.



