In dieser Immobilie ist GENERATIONSWOHNEN besonders komfortabel möglich:
Im ersten Obergeschoss befindet sich die großzügige und gepflegte 4-Zimmer-Wohnung (89,50 m²), die im Jahr 2023 modernisiert wurde. Ergänzt wird sie durch ein Apartment (30 m²) im Erdgeschoss mit großer, überdachter Terrasse und direktem Zugang zum Garten.
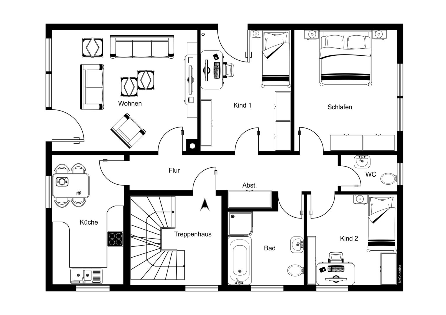
Beim Betreten der 4-Zimmer-Wohnung gelangen Sie in einen zentralen Flur, von dem aus alle Räume bequem erreichbar sind. Am Ende des Flurs, auf der linken Seite, folgt die großzügige Küche mit einem kleinen Essbereich. Direkt anschließend folgt das helle Wohnzimmer mit großer Fensterfront, mit direktem Blick in den Garten.
Entlang des Flurs folgen zwei weitere Zimmer, die sich flexibel als Schlaf-, Arbeits- oder Gästezimmer nutzen lassen. Gegenüber folgt ein weiteres Schlafzimmer, direkt daneben das großzügige, tagesbelichtete Badezimmer mit Wanne und Dusche. Ein hell gefliestes Gäste-WC am Ende des Flurs rundet das Raumangebot ab.
Die ideale Ergänzung für Familien oder die Kombination von Wohnen und Arbeiten bietet das APARTMENT im Erdgeschoss. Auf rund 30 m² erwarten Sie ein großzügiger Wohn-Ess-Bereich mit Schlafnische, ein helles, modernes Duschbad sowie eine überdachte Terrasse mit Gartennutzung.
Ein ideales Zuhause für Familien, Paare oder Generationen, die Wert auf Licht, Raum und Grün legen.
Im Keller befinden sich die Waschküche sowie ein zur Wohnung gehörendes großes Kellerabteil. Ein PKW-Stellplatz auf dem Grundstück gehört ebenfalls zur Wohnung. Alternativ stehen auf dem angrenzenden Straßenland ausreichend freie Stellplätze zur Verfügung.
Im Jahr 2023/2024 wurden die Öl-Heizungsanlage sowie die Warmwasseraufbereitung komplett erneuert. Ebenso wurden alle Rohrleitungen und sämtliche Stromzähler ausgetauscht.
Sprechen Sie uns gerne für weitere Informationen zu diesem Angebot an.




